Beschrijving
Bent u op zoek naar een nette uitgebouwde tweekapper met volop leefruimte en flexibiliteit? Dan voelt u zich hier direct thuis. Deze verzorgde woning ligt op een fijne locatie en biedt u verrassend veel mogelijkheden. De voormalig garage is multifunctioneel opgezet en kan perfect dienst doen als extra werk-/speelruimte of eenvoudig worden teruggebracht tot garage. Daarnaast een verzorgde tuin én parkeert u de auto op uw eigen oprit.
Wacht niet en plan vandaag nog uw bezichtiging in!
Indeling
Begane grond:
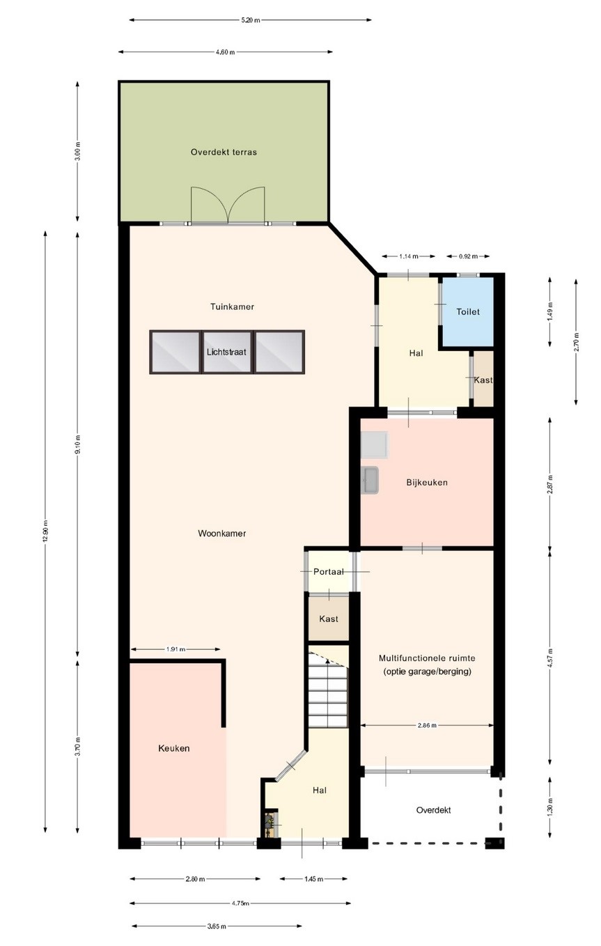
U stapt binnen in een verzorgde ontvangsthal waar direct de nette afwerking opvalt. Hier bevinden zich de meterkast en de trapopgang naar de verdieping.
Vanuit de hal loopt u door naar de royaal uitgebouwde living. Hier ervaart u direct de extra meters die deze woning nog aantrekkelijker maken. De ruimte biedt volop plaats voor een royale zithoek én een grote eettafel.
Aan de voorzijde van de woning bevindt zich de nette keuken, opgesteld in een praktische hoekopstelling. Een echte blikvanger is het 6-pits kookfornuis van Boretti met oven en grillplaat – ideaal voor de kookliefhebber die graag uitpakt. Verder beschikt de keuken over een afzuigkap, vaatwasser, koelkast, vrieskast en voldoende kastruimte waaronder een handige apothekerskast. De inbouwspotjes zorgen voor prettige verlichting tijdens het koken.
De achterzijde van de woning is volledig gericht op licht en tuinbeleving. De grote lichtstraat in de uitbouw zorgt voor een prachtige natuurlijke lichtinval. De openslaande deuren, voorzien van plissé hordeuren, geven directe toegang tot het terras en versterken het gevoel van het buitenleven. Daarnaast zijn er inbouwspots en is hier een airco aanwezig, zodat u ook op warme dagen geniet van een aangename temperatuur.
De gehele begane grond (woongedeelte) is afgewerkt stucwerk en een natuurstenen vloer (travertin) waarvan de living is voorzien van vloerverwarming. Dit zorgt niet alleen voor een luxe uitstraling, maar ook voor optimaal comfort.
Vanuit de woonkamer bereikt u via een portaaltje een praktische voorraadkast én de multifunctionele ruimte (voormalige garage).
Multifunctionele ruimte (voormalig garage):
De voorzijde is momenteel als slaapkamer in gebruik maar kan uitstekend dienst doen als berging-/speel-/werkkamer. De oorspronkelijke garagedeur heeft plaatsgemaakt voor een raam en een loopdeur, waardoor een volwaardige kamer met daglicht en een eigen entree is ontstaan.
Daarachter bevindt zich een tweede werkruimte (bijkeuken) met wasmachineaansluiting, een uitstortgootsteen en een keukenblokje. Indien gewenst is de tussenwand eenvoudig te verwijderen, zodat de ruimte als 1 geheel of weer als garage gebruikt kan worden.
Zowel vanuit de woonkamer als vanuit deze multifunctionele ruimte bereikt u een extra hal aan de achterzijde met een praktische inbouwkast en de toiletruimte. Het toilet is netjes afgewerkt met natuurstenen wand- en vloerafwerking en voorzien van een vrijdragend toilet, fonteintje en inbouwspotjes. Vanuit deze hal is eveneens een deur naar de achtertuin aanwezig.
Eerste verdieping
De overloop is netjes afgewerkt met tapijt, stucwerk en spuitwerkplafond. Op deze verdieping bevinden zich 3 slaapkamers respectievelijk 15m2, 12.4m2 en 10.1m2 groot.
De slaapkamers zijn alle drie voorzien van laminaatvloer, gestucte wanden en een spuitwerk plafond. Hiervan beschikt 1 kamer over een grote dakkapel (kamer boven garage).
Centraal op de verdieping treft u de moderne volledig betegelde badkamer (2016). Hier beschikt u over een royale inloopdouche, een eigentijds badmeubel met duo wastafel, vrijdragend toilet, vloerverwarming en handdoekenradiator. De inbouwspotjes en de spiegel met verlichting versterken het moderne karakter. Bovendien is er een raam aanwezig dat zorgt voor natuurlijke ventilatie en prettig daglicht.
Tweede verdieping
Via de vaste trap bereikt u de royale open zolderruimte (18.5m2) die u tal van mogelijkheden biedt. Of u nu behoefte heeft aan een extra slaapkamer, rustige thuiswerkplek of een hobbyruimte: het kan allemaal. De ruimte is voorzien van een airco-unit (Tosot). Daarnaast treft u hier de opstelling van de HR-combiketel van Nefit (2025) en extra aansluitingen t.b.v. de wasapparatuur.
De vloer is afgewerkt met tapijt waarbij het gedeelte rondom de cv-ketel en de wasmachineaansluiting is betegeld. Dankzij het grote Velux dakvenster met verduistering valt er daglicht binnen en kunt u de ruimte eenvoudig naar wens afschermen. Achter de knieschotten vindt u bovendien praktische bergruimte – ideaal voor het opbergen van seizoensspullen of koffers.
Tuin
De tuin is verzorgd en onderhoudsvriendelijk aangelegd. Direct aan huis bevindt zich een aluminium terrasoverkapping (4.6m bij 3m) met inbouwspotjes en lichtdoorlatende polycarbonaatplaten, waardoor u hier beschut én licht zit. Het kunstgras gazon, de vaste beplanting en het buitenkraantje maken het geheel compleet. Achter in de tuin staat een houten berging (ca. 12m2) voorzien van elektra en aansluitend een tweede overkapping (4m bij 3.6m) – perfect voor extra opslag, het stallen van fietsen of het creëren van een knusse loungeplek.
Bijzonderheden
• Gunstige ligging in kindvriendelijke en gewilde wijk ‘De gentiaan’ nabij allerhande voorzieningen.
• Over de volle breedte uitgebouwd aan de achterzijde.
• Keurig onderhouden.
• Eigen oprit.
• Multifunctionele ruimte met mogelijkheid voor extra werk-/speelruimte of eenvoudig terug te brengen tot de originele garage.
• Living en badkamer voorzien van vloerverwarming.
• 2x airco aanwezig.
• HR-combiketel 2025.
• Fijne achtertuin met 2x overdekt terras.
Locatie:
Deze woning is rustig gelegen in gewilde en kindvriendelijke wijk ‘de Gentiaan’. Zeer centraal ten opzichte van sportvoorzieningen, supermarkt, spa faciliteiten, basisscholen, natuurgebieden en openbaar vervoer. Tevens op korte afstand van uitvalswegen zoals de A50 en A2.