Beschrijving
Op een prachtige bosrijke locatie in gewilde wijk ’t Harde Ven staat deze bijzondere vrijstaande bosvilla.
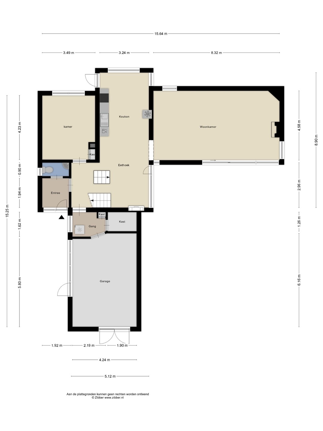
De villa verrast direct door de speelse indeling met verschillende niveauverschillen.
De woning beschikt over een fijne living met zit- en eetgedeelte en open keuken die op een ruimtelijke manier met elkaar verbonden zijn. Daarnaast zijn er 3 slaapkamers, 2 badkamers, een garage en een extra werk-/speel-/hobbykamer op de begane grond.
Rondom een mooie groene tuin en een lange oprit die het royale karakter van het perceel van maar liefst 1.701 m2 onderstreept.
U woont hier vrij en groen met het bos om de hoek én het centrum van Son en Breugel op steenworp afstand.
Indeling
Begane grond:
Via de lange oprit voor meerder auto’s bereikt u de overdekte entree. De ontvangsthal is voorzien van een vinylvloer en gestucte wanden en plafond. Vanuit hier is er toegang tot het woongedeelte en de toiletruimte. Het toilet is deels betegeld en voorzien van een staand toilet en fonteintje.
De hal biedt toegang tot de multifunctionele werk-/hobbykamer, deze is afgewerkt met een laminaatvloer, gestucte wanden en een praktische inbouwkast. Aan de andere zijde bevindt zich de bijkeuken met tegelvloer, uitstortgootsteen en een ruimte met uitgebreide meterkast (9 groepen, 2 aardlekschakelaars, 3 fasen) en de opstelling van de heteluchtverwarmingsinstallatie (Brink).
Middels een ‘speels’ niveauverschil van drie traptreden bereikt u het eetgedeelte. Dit gedeelte is afgewerkt met een natuurstenen vloer en gestucte wanden en beschikt over een open haardpartij én een extra loopdeur naar de tuin. Aansluitend de open keuken met wandopstelling en voldoende ruimte voor nog een fijne eethoek. De keuken is uitgerust met een 4-pits kookplaat, afzuigkap, oven en een vaatwasser (alle apparatuur van Miele). Hier ligt een laminaat vloer en ook vanuit deze ruimte is er toegang tot de tuin.
De sfeervolle en lichte woonkamer is voorzien van een natuurstenen vloer, gestucte wanden/plafond en een tweede open haard. Een grote schuifpui biedt direct toegang tot de tuin en de grote raampartijen zorgen voor veel lichtinval en zicht op de tuin.
Eerste verdieping
Via enkele traptreden niveauverschil toegang tot de overloop, deze is afgewerkt met een houten vloer en gestucte wanden/plafond. Hier bevindt zich een inloopkast met toegang (middels luik) tot de kleine bergzolder en tevens de opstelling van nieuwe geiser (Bosch 2025) t.b.v. warmwater voorziening.
De royale ouderslaapkamer ligt een paar treden hoger en voelt dankzij het niveauverschil extra bijzonder aan (meer privacy). Deze kamer heeft een stijlvolle houten vloer, stucwerk wanden/plafond en een deur (met hor) die toegang biedt tot het balkon – een heerlijke plek om te genieten van de ochtendzon. Vanuit deze kamer heeft u direct toegang tot de eerste badkamer, volledig betegeld in lichte tinten en voorzien van een ligbad, wastafelmeubel met vaste wastafel en staand toilet.
Slaapkamer 2 en 3 zijn eveneens keurig afgewerkt met een houten vloer, gestucte wanden/plafond, inbouwkasten en bieden een prettig uitzicht op de tuin.
Vanaf de overloop is de tweede badkamer bereikbaar, geheel betegeld en uitgerust met een douche, vaste wastafel en een staand toilet.
Tuin
Tuin:
Rondom de woning (waarvan de achtertuin op het zuidwesten) ligt een prachtige groene tuin met een diversiteit aan vaste beplanting en volwassen bomen. Dankzij de 3 terrassen kunt u op elk moment van de dag kiezen voor zon of schaduw. Verder zijn er 2 buitenkranen aanwezig en een houten bergschuurtje voor uw tuingereedschappen. Een groot deel loopt door tot aan de Lamalaan (zuid), momenteel begroeid als bos en biedt volop mogelijkheden om dit naar wens bij de tuin te betrekken.
Garage:
De garage is inpandig bereikbaar vanuit de bijkeuken. U vindt hier de aansluitingen t.b.v. de wasapparatuur, een inbouwkast, openslaande (houten) garagedeuren naar de oprit en een extra loopdeur.
Bijzonderheden
• Gelegen in gewilde wijk “t Harde Ven” op korte afstand van allerhande voorzieningen en centrum Son.
• Drie ruime slaapkamers.
• Twee badkamers.
• Royale oprit voor meerdere auto’s.
• Inpandig bereikbare garage.
• Mooie tuin rondom (waarvan de achtertuin op het zuidwesten) met meerdere terrassen, volwassen beplanting en bos.
• Vanuit alle leefruimtes zicht op de tuin.
• Separate werk-/hobby-/televisiekamer op de begane grond.
• Verwarming middels heteluchtverwarming.
• De foto's van de lege slaapkamer en lege garage zijn bewerkt en geven u een indruk hoe de ruimte eruit ziet zonder de huidige inrichting.
Locatie:
Deze bos villa is gelegen in zeer gewilde en ruim opgezette groene en bosrijke wijk “t Harde Ven”. Hiervandaan loopt u zo de wandelbossen in. Tevens op korte fietsafstand van het centrum Son, verschillende soorten sportaccommodaties, scholen (LO) en nabij de uitvalswegen A2 en A50. Daarnaast bereikt u in ongeveer 5 autominuten het meubelplein “Ekkersrijt” en op circa 10 autominuten het van centrum Eindhoven.