Beschrijving
Deze verrassend ruime over de volle breedte uitgebouwde en keurig verzorgde woning aan de Aziëlaan 55 in Son en Breugel wilt u absoluut zien.
Van de kunststof kozijnen tot de moderne afwerking, vloerverwarming, slaapkamers, garage, uitbouw over de volle breedte en overdekt terras: alles is tot in detail verzorgd.
Binnen én buiten ademt het huis comfort, licht en gebruiksgemak.
Ideaal voor gezinnen die houden van ruimte, sfeer en comfort.
Kom snel langs bij de Aziëlaan en laat u verrassen door de woning en zijn omgeving!
Indeling
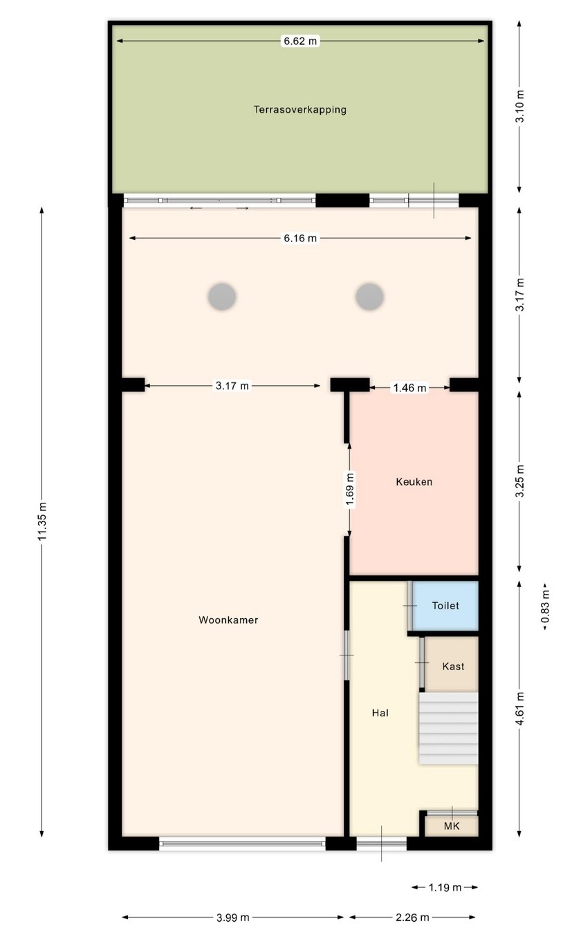
Begane grond:
Via de keurige voortuin bereikt u de overdekte entree. De ontvangsthal is netjes afgewerkt met een tegelvloer, gestucte wanden en een gestuct plafond. Hier treft u de meterkast, trapopgang, praktische trapkast en een deels betegelde toiletruimte met toilet en fonteintje.
De woonkamer is aan de achterzijde over de volle breedte uitgebouwd en voorzien van een tegelvloer. Glad gestucte wanden/plafond en extra lichtinval dankzij inbouwspots en solartubes en deze zorgen voor een moderne uitstraling. Via de schuifpui én een separate loopdeur heeft u direct toegang tot de tuin.
De moderne open keuken in lichte L-opstelling beschikt over een 5-pits gaskookplaat, afzuigkap, koelkast met vriesvak, combimagnetron en een 4-couvert vaatwasser – heeft veel kastruimte en is praktisch en verzorgd ingericht.
De begane grond m.u.v. de hal is voorzien van vloerverwarming.
Eerste verdieping
Via de vaste trap, voorzien van automatische trapverlichting, komt u op de eerste verdieping. Ook hier is de afwerking keurig doorgetrokken: een doorlopende laminaatvloer met hoge plinten, glad gestucte wanden en een strak plafond zorgen voor een moderne en rustige uitstraling.
Op de overloop bevindt zich een separate, deels betegelde toiletruimte.
De drie slaapkamers zijn instapklaar en identiek afgewerkt met laminaatvloeren, hoge plinten, gestucte wanden en plafonds. Alle kamers beschikken over kunststof kozijnen met draaikiepfunctie, horren en elektrisch bedienbare rolluiken. Daarnaast heeft de slaapkamer aan de voorzijde een praktische inbouwkast, terwijl de slaapkamer aan de tuinzijde is voorzien van een vaste kastenwand.
De grotendeels betegelde badkamer is ingericht met een ligbad met douchefunctie, een wastafelmeubel met vaste wastafel én twee extra badkamermeubels, wat zorgt voor veel bergruimte. Een raam biedt zowel daglicht als natuurlijke ventilatie.
Tweede verdieping
De tweede verdieping is via een vaste trap bereikbaar. De overloop is afgewerkt met laminaat, hoge plinten, gestucte wanden en een gestuct plafond. Hier vindt u bergruimte achter knieschot en de CV-/wasruimte met aansluitingen t.b.v. de wasapparatuur, alsmede de opstelling van de HR-combiketel (Nefit, 2019). Een Velux dakvenster met verduistering zorgt voor licht en ventilatie.
De royale zolderkamer is keurig afgewerkt met laminaat, gestucte wanden/plafond, inbouwspots en bergruimte achter het knieschot. Er is een airco (Mitsubishi 2025) aanwezig en een grote dakkapel met handbediend rolluik.
Locatie:
Deze woning is rustig gelegen aan een brede laan met groenstrook aan voorzijde in gewilde en kindvriendelijke wijk ‘de Gentiaan’. Zeer centraal ten opzichte van sportvoorzieningen, supermarkt, spa faciliteiten, basisscholen, natuurgebieden en openbaar vervoer. Tevens op korte afstand van uitvalswegen zoals de A50 en A2.
Tuin
De achtertuin is tot in de puntjes onderhouden en biedt voor ieder moment van de dag een fijne plek. Direct aan huis bevindt zich een royale terrasoverkapping, compleet met inbouwspots voor sfeervolle verlichting in de avond. Achter in de tuin vindt u een tweede, kleiner terras, ideaal als extra lounge- of zitplek.
Het gazon is netjes aangelegd en wordt volledig omsloten door een verzorgde schutting en met op 5 plaatsen tuinverlichting, wat zorgt voor privacy en een kindvriendelijke omgeving. Een buitenkraantje is aanwezig en via de achterom bereikt u eenvoudig het garagepleintje.
Garage:
Achter in de tuin staat de stenen garage, eveneens keurig verzorgd en voorzien van elektra en water. De garage heeft een loopdeur naar de tuin én een elektrisch bedienbare sectionaaldeur richting het pleintje.
Bijzonderheden
• Instapklaar en strak afgewerkt.
• Gehele woning voorzien van kunststof kozijnen met draai-/kiep functie en HR++ glas.
• Vloerverwarming begane grond m.u.v. de hal.
• Grote uitbouw (2015) aan achterzijde over de volle breedte.
• Pannendak (incl. tengels en panlatten) vernieuwd 2020.
• Bitumen dakkapel en garage vernieuwd in 2022. Uitbouw en overkapping 2015.
• Binnen riolering vernieuwd 2018.
• Overdekt terras met inbouwspots.
• 1e en 2e verdieping rolluiken en horren op alle kamers.
• Zolderkamer met airco 2025.
• Nette keuken met complete inbouw apparatuur.
• Achterom naar garage pleintje.
• Kindvriendelijke wijk.