| Prijs | € 578.000,- k.k. |
| Type object | Woonhuis, eengezinswoning, twee onder een kap woning |
| Perceeloppervlakte | 387 m² |
| Woonoppervlakte | 161 m² |
| Aanvaarding | In overleg |
| Status | Verkocht onder voorbehoud |
Een complete gezinswoning op een fijne locatie! Aan de Scheldelaan 14 in Son en Breugel treft u deze verrassend ruime en uitstekend ingedeelde twee-onder-een-kap woning met onder andere 5 slaapkamers, 2 badkamers, een vrijstaande garage en een fijne tuin op het zuidoosten. Een ideaal thuis voor wie op zoek is naar comfort, ruimte en een fijne woonomgeving. Zien we u binnenkort voor een bezichtiging?
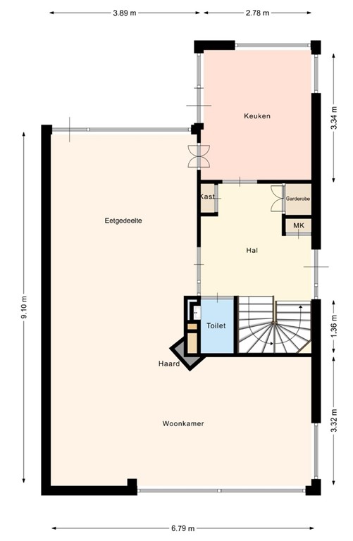
Via de overdekte entree betreedt u de woning en komt u binnen in een verzorgde ontvangsthal. Deze hal is afgewerkt met een marmeren vloer en stucwerk. De garderobe is netjes weggewerkt in een vaste kast, waardoor jassen uit het zicht kunnen worden opgeborgen. Daarnaast vindt u hier de meterkast, trapopgang en toiletruimte. De vernieuwde toiletruimte is volledig betegeld en uitgevoerd met een vrijdragend toilet, fonteintje en inbouwspots. De L-vormige woonkamer is een aangename en lichte leefruimte met grote raampartijen (v.v. zonneluifel) aan zowel de voor- als achterzijde. Er is ruimte voor een sfeervolle zithoek en een ruim eetgedeelte aan de tuinzijde. De ruimte is afgewerkt met deels metselwerk/deels krabwerk en een marmeren vloer. De haard vormt een sfeervol middelpunt en zorgt voor extra warmte en gezelligheid. Bij het eetgedeelte bevindt zich een praktische doorgeefkast naar de keuken, dit kan eenvoudig gewijzigd worden tot een opening /doorgang van het eetgedeelte naar de keuken. Daarnaast is er nog een deur die rechtstreeks toegang biedt tot de tuin. De keuken is vanuit de hal middels een taatsdeur bereikbaar en geplaatst in een hoekopstelling (Keller Keukens), met volop werk- en kastruimte. U heeft hier o.a. de beschikking over een 4-pits inductiekookplaat, afzuigkap, oven, magnetron, koel-/vriescombinatie en vaatwasser (de apparatuur is circa 3 jaar geleden vernieuwd). Het plafond beschikt over inbouwspots voor prettige en functionele verlichting. Tevens is er een extra deur naar de tuin. De gehele begane grond is voorzien van vloerisolatie en vloerverwarming (vernieuwd in 1997).
Op de eerste verdieping komt u op een ruime overloop. De ruimte is afgewerkt met lamelparket en stucwerk wanden/plafond. Dankzij het extra zijgevelraam valt er prettig daglicht naar binnen. Vanaf hier heeft u toegang tot 4 slaapkamers en de badkamer. De slaapkamers zijn respectievelijk 14.8m2, 13.1m2, 8.9m2 en 6.8m2 groot. Hiervan zijn 3 slaapkamers voorzien van lamelparket, deels stucwerk/deels behang wanden en 2 daarvan met een inbouwkast v.v. aansluiting voor een vaste wastafel. De ouderslaapkamer aan voorzijde beschikt over tapijt, een inbouwkast en rechtstreeks toegang tot de badkamer. De badkamer is nagenoeg volledig betegeld en voorzien van een ligbad, dubbele wastafel en een staand toilet. Kortom, deze verdieping biedt u vier volwaardige slaapkamers en een complete badkamer, waardoor de woning uitermate geschikt is voor een gezin of voor wie extra werk-, hobby- of logeerruimte wenst. De gehele verdieping is voorzien van vloerverwarming.
Via de vaste trap bereikt u de tweede verdieping, waar u wordt verrast door een ruime en veelzijdige zolderkamer. Deze royale ruimte is afgewerkt met tapijttegels, een combinatie van houten schroten, metselwerk/stucwerk en krijgt een prettige hoeveelheid daglicht dankzij het extra zijgevelraam en de grote dakkapel aan de tuinzijde. Aan 1 zijde is een praktische kastenwand gerealiseerd en daarnaast is er nog extra bergruimte achter de knieschotten. Aansluitend toegang tot de praktische berg-/CV-/wasruimte. Hier bevindt zich de HR-combiketel Nefit (2018). Tevens zijn hier de aansluitingen voor de wasapparatuur aanwezig. Deze ruimte biedt bovendien nog toegang tot extra bergruimte en beschikt over een dakraampje. Als extra pluspunt beschikt deze verdieping over een eigen doucheruimte, direct bereikbaar vanaf de zolderkamer. Deze is grotendeels betegeld en voorzien van een douche en een vaste wastafel. Ideaal als extra badkamer of bijvoorbeeld voor een logeerkamer op deze verdieping. De gehele verdieping is voorzien van vloerverwarming.
De achtertuin is verzorgd aangelegd en biedt een fijne combinatie van groen en praktische terraszones. Direct aan de woning bevindt zich een prettig terras, waar u heerlijk kunt zitten. Dit terras is voorzien van een zonnescherm en een terrasverwarmingslamp, waardoor u hier al vroeg in het voorjaar en tot laat in de avond comfortabel buiten kunt genieten. Verderop in de tuin is nog een tweede bestraat terrasgedeelte gerealiseerd, ideaal om op verschillende momenten van de dag een plekje in de zon of juist in de schaduw te vinden. De tuin beschikt daarnaast over een gazon, borders met vaste beplanting en een kleine vijverpartij, wat zorgt voor een groene en ontspannen uitstraling. De tuin is bovendien praktisch bereikbaar via een achterom langs de zijgevel van de woning. Hier bevindt zich tevens de oprit met ruimte voor meerdere auto's. Tenslotte is er een buitenkraan aanwezig, wat het onderhoud van de tuin extra gemakkelijk maakt. ook is er een extra achterom te maken naar het achtergelegen pleintje. De garage (8.75m bij 3.02m) is voorzien van elektra, openslaande deuren naar de oprit en loopdeur naar de tuin. Het tussenwandje kan eenvoudig verwijderd worden. de garage is halfsteens en voorzien van een betegelde vloer.
Locatie: Deze woning is gelegen in zeer gewilde ruim opgezette wijk “de Gentiaan”. De bossen om de hoek, op korte fietsafstand van verschillende soorten sportaccommodaties, scholen (LO), nabij uitvalswegen A2 en A50 en op circa 10 autominuten van centrum Eindhoven. Bijzonderheden: - Rustige ligging op korte afstand van de bossen. - Heerlijk ruime gezinswoning. - Badkamer op 1e verdieping én aparte doucheruimte op de 2e verdieping. - Vijf slaapkamers. - Grote losstaande garage. - Oprit voor meerdere auto's. - Keurige toiletruimte. - Volledig v.v. vloerverwarming (kunststof leidingen PE-RT) waarvan de begane grond vernieuwd en geïsoleerd (1997). - Keukenapparatuur circa 3 jaar oud. - Deze keurige en netjes onderhouden woning vormt een uitstekende basis om volledig naar eigen smaak te moderniseren. Met vijf slaapkamers, twee badkamers, een grote garage en een prachtige ligging is dit een heerlijke plek om jarenlang met veel plezier te wonen! - Een toegankelijk pleintje aan de achterzijde en direct bereikbaar middels eigen achterom.
| Referentienummer | 06417 |
| Vraagprijs | € 578.000,- k.k. |
| Inrichting | Niet gestoffeerd |
| Inrichting | Niet gemeubileerd |
| Status | Verkocht onder voorbehoud |
| Aanvaarding | In overleg |
| Aangeboden sinds | Woensdag 18 maart 2026 |
| Laatste wijziging | Dinsdag 7 april 2026 |
| Type object | Woonhuis, eengezinswoning, twee onder een kap woning |
| Soort bouw | Bestaande bouw |
| Bouwperiode | 1970 |
| Dakbedekking | Dakpannen |
| Type dak | Zadeldak |
| Isolatievormen | Grotendeels dubbel glas Muurisolatie Spouwmuren Vloerisolatie |
| Perceeloppervlakte | 387 m² |
| Woonoppervlakte | 161 m² |
| Inhoud | 540 m³ |
| Oppervlakte externe bergruimte | 26,42 m² |
| Aantal bouwlagen | 4 |
| Aantal kamers | 6 (waarvan 5 slaapkamers) |
| Aantal badkamers | 2 (en 1 apart toilet) |
| Ligging | Aan rustige weg In bosrijke omgeving In woonwijk Nabij school Nabij snelweg |
| Type | Voortuin |
| Oriëntering | Zuid-west |
| Staat | Normaal |
| Tuin 2 - Type | Achtertuin |
| Tuin 2 - Hoofdtuin | Ja |
| Tuin 2 - Oriëntering | Noord-oost |
| Tuin 2 - Heeft een achterom | Ja |
| Tuin 2 - Staat | Normaal |
| Energielabel | C |
| CV ketel | HR |
| Warmtebron | Gas |
| Bouwjaar | 2018 |
| Combiketel | Ja |
| Eigendom | Eigendom |
| Aantal parkeerplaatsen | 4 |
| Aantal overdekte parkeerplaatsen | 1 |
| Warm water | CV-ketel |
| Verwarmingssysteem | Centrale verwarming Open haard Vloerverwarming |
| Ventilatie methode | Natuurlijke ventilatie |
| Keukenvoorzieningen | Inbouwapparatuur |
| Badkamervoorzieningen Badkamer 1 | Douche Dubbele wastafel Ligbad Toilet |
| Badkamervoorzieningen Badkamer 2 | Douche Wastafel |
| Parkeergelegenheid | Vrijstaande stenen garage |
| Heeft kabel-tv | Ja |
| Heeft een open haard | Ja |
| Glasvezelaansluiting aanwezig | Ja |
| Tuin aanwezig | Ja |
| Heeft een garage | Ja |
| Kadastrale aanduiding | Son En Breugel A 2030 |
| Perceeloppervlakte | 387 m² |
| Omvang | Geheel perceel |
| Eigendomsituatie | Eigen grond |