Beschrijving

We organiseren op zaterdag 28 februari a.s. van 10.00 tot 11.30 uur een Open Huis.

Graag aanmelden via ons kantoor. U ontvangt dan een link met de bevestiging. Deze link biedt tevens toegang tot de dataroom waar u de relevante documenten van de woning kunt inzien.

Ruimte, comfort én een fijne ligging aan de rand van het centrum van Son en Breugel. 
Deze verrassend ruime en goed onderhouden vrijstaande woning is een plek waar u zich direct thuis zult voelen.
Met een royale living, multifunctionele werk-/speelkamer, drie slaapkamers, een grote garage én een diepe tuin op het westen heeft dit huis ontzettend veel te bieden. Volop ruimte om te leven, werken, ontspannen én te genieten. En wist u dat het bestemmingsplan voor dit perceel aangeeft dat u hier een nog grotere hobbyruimte/bedrijfsruimte mag bouwen!
We vertellen u er graag meer over tijdens een bezichtiging.

Indeling

Begane grond:
Via de overdekte entree betreedt u de ontvangsthal, waar u direct de nette afwerking opmerkt. De hal is voorzien van een tegelvloer met vloerverwarming, gestucte wanden/plafond en de trapopgang. Hier vindt u tevens de uitgebreide meterkast en een moderne toiletruimte met vrijdragend toilet en fonteintje.
Grenzend aan de hal bevindt zich een multifunctionele werk-/speelkamer, eveneens afgewerkt met tegelvloer en gestucte wanden en plafond – ideaal voor thuiswerken, een hobbyruimte of speelkamer voor de kinderen.
En dan de living – wat een fijn lichte ruimte. Dankzij de royale indeling heeft u hier een apart zit- en een eetgedeelte. Grote raampartijen zorgen voor een overvloed aan daglicht en de brede schuifpui brengt buiten en binnen op warme dagen prachtig samen. Het zitgedeelte is voorzien van een sfeervolle schouw met gashaard, die niet alleen warmte, maar ook gezelligheid brengt. De tegelvloer loopt naadloos door en wordt verwarmd, wat zorgt voor een aangenaam wooncomfort. Een handige trapkast biedt extra bergruimte.
Aan de voorzijde ligt de open keuken in hoekopstelling. Deze moderne keuken is voorzien van een vijfpits gaskookplaat, afzuigkap, koelkast, combi-oven en een praktische voorraad-/inbouwkast. Hier kookt u met plezier, terwijl u in contact blijft met uw gezin of gasten. Circa tien jaar geleden zijn de keuken, vloeren en de gashaard vernieuwd, waardoor de begane grond een frisse en eigentijdse uitstraling kreeg.
Vanuit hier toegang tot de praktische bijkeuken. Hier bevinden zich de aansluitingen voor het witgoed en er is een loopdeur naar de zijtuin. Hier is tevens een vaste kastwand met daarin de opstelling van de HR-combiketel (Bosch).

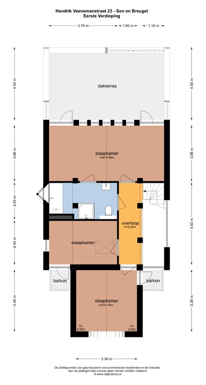
Eerste verdieping

De overloop is afgewerkt met tapijt, gestucte wanden/plafond en een zijgevelraam. Vanuit hier heeft u toegang tot de drie slaapkamers en de badkamer.
Slaapkamer 1 (achterzijde) is voorzien van tapijt, gestucte wanden/plafond, radiatorombouw en airconditioning (Mitsubishi). Vanuit deze slaapkamer heeft u direct toegang tot de badkamer en het royale dakterras van ca. 24 m2. Eventuele uitbreiding middels een opbouw op deze uitbouw/dakterras is toegestaan.
Slaapkamer 2 is eveneens afgewerkt met tapijt, gestucte wanden/plafond en radiatorombouw. Daarnaast zijn er nog een deur naar het balkon en een vlizotrap naar de ruime bergzolder.
Slaapkamer 3 ligt aan de voorzijde van de woning. De afwerking bestaat uit tapijt, gestucte wanden/plafond en een radiatorombouw. Tevens een deur naar het balkon en een extra detail is de opvallende raampartij die voor een speelse lichtinval zorgt.
De complete en keurige badkamer is volledig betegeld en uitgerust met een ligbad, separate douche, vaste wastafel, vrijdragend toilet en handdoekenradiator.

Tweede verdieping

Via de vlizotrap bereikt u de ruime bergzolder, waar u niet alleen veel opbergruimte vindt maar ook de omvormer van de 10 zonnepanelen.

Overige verdiepingen

Garage:
Achter in de tuin staat de grote vrijstaande garage (in spouw). De garage is royaal van formaat ( 30m²) en voorzien van elektra, een uitstortgootsteen, een stalen kanteldeur en twee loopdeuren (naar de tuin en naar de achterzijde). Of u nu graag klust, extra opslag zoekt of gewoon ruimte wilt voor fietsen en auto – hier heeft u alle mogelijkheden. Uitbreiden en vergroten (incl. verdieping) is toegestaan binnen het bestemmingsplan.

Balkon

Groot dakterras vanuit de ouderslaapkamer bereikbaar en is zuidwest gesitueerd.

Tuin

De diepe achtertuin is op het westen gesitueerd en een heerlijke plek om te ontspannen. Een groot terras aan huis met zonneluifel (handbediend) biedt beschutting tijdens zonnige dagen. De tuin is volledig omheind met een afsluitbare poort (achterom) naar de voorzijde van de woning. Daarnaast een gazon, een diversiteit aan vaste beplanting en een buitenkraantje. Achterin de tuin is de grote garage gesitueerd en komt uit op het Schietbaantje (doodlopend en vanuit de Boslaan bereikbaar).

Bijzonderheden

•	Direct aan de rand van het centrum van Son gelegen. Op loopafstand van winkels en allerhande voorzieningen.
•	Begane grond circa 10 jaar geleden gerenoveerd: vloer, keuken en haard.
•	Drie slaapkamers en extra werk-/speelkamer op de begane grond.
•	Instapklaar.
•	Nette badkamer en sanitair.
•	Grote garage van ruim 29m² in spouw. Gelegen aan het Schietbaan (bereikbaar middels Boslaan).
•	De gehele begane grond (m.u.v. werkkamer) voorzien van vloerverwarming.
•	Alarminstallatie aanwezig.
•	10 zonnepanelen.
•	Diepe achtertuin en groot dakterras op het westen met achterom .
•	Energielabel B.

Locatie:
Deze woning is gelegen direct aan de rand van het centrum van Son en Breugel, op korte loopafstand van winkels en openbaar vervoer. Tevens op korte fietsafstand van verschillende soorten sportaccommodaties, scholen (LO), nabij uitvalswegen A2 en A50 en op circa 10 autominuten van centrum Eindhoven.

Kenmerken