Beschrijving

Stelt u zich eens voor: wakker worden midden in het bruisende hart van Son en Breugel, met alles wat u nodig heeft letterlijk om de hoek. 
Dit sfeervolle appartement aan het 17 Septemberplein combineert het gemak van wonen in het centrum met het comfort van een fijne woonruimte.
Het appartement is gelegen op de eerste verdieping en beschikt o.a. over 2 slaapkamers, riant dakterras en 2 eigen parkeerplaatsen in de ondergelegen parkeerkelder.  Een unieke kans voor wie stijlvol wil wonen in het centrum van Son!

Indeling

Begane grond:
Centrale overdekte entree met bellentableau en de brievenbussen. Ruime ontvangsthal met trappenhuis en de lift.

Eerste verdieping

Appartement op de eerste verdieping:
Op de 1e etage begeeft u zich via een ruime open galerij naar het appartement.
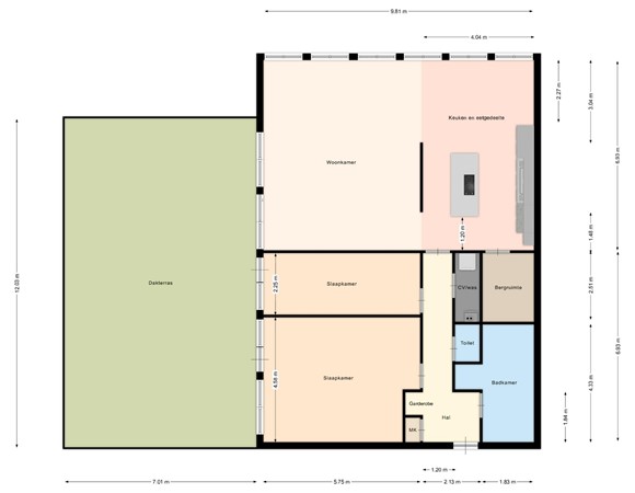
Binnen komt u terecht in een royale ontvangsthal met een natuurstenen vloer, strak gestucte wanden/plafond, ruimte voor uw garderobe en de meterkast. Separate geheel betegelde toiletruimte met vrijdragend toilet en fonteintje. Vanuit de hal heeft u toegang tot alle vertrekken van het appartement.

Living:
De royale woonkamer is verdeeld in een gezellig zitgedeelte en een eetgedeelte met open keuken. Het zitgedeelte heeft een sfeervolle uitstraling met tapijt en gestucte wanden/plafond. De grote raampartijen en de schuifpui naar het dakterras zorgen voor een fraai uitzicht en veel lichtinval. Dankzij de grote zonneluifel is het hier ook in de zomer heerlijk toeven. Een subtiele scheidingswand zorgt voor een speelse verdeling tussen het zit- en eetgedeelte.
Wat dit appartement extra bijzonder maakt zijn de vele grote raampartijen. Niet alleen richting het dakterras komt er ook vanuit de woonkamer, keuken en het eetgedeelte heeft u prachtig uitzicht. De grote openslaande ramen bieden zicht op een klein, zuid gericht parkje, waardoor u altijd geniet van een groene en lichte woonbeleving.

De keuken (Henri Huyberts) is een echte eyecatcher. Met een natuurstenen vloer, een praktische wandopstelling én een kookeiland is dit de perfecte plek om te koken én samen te komen. De keuken is voorzien van hoogwaardige Siemens-inbouwapparatuur; waaronder een inductiekookplaat, afzuigkap, koelkast, vrieskast, combi-oven, magnetron én een vaatwasser op hoogte. Hier komen gemak en luxe samen. Aansluitend een ruime praktische bergruimte waar u moeiteloos uw voorraad en andere spullen kwijt kunt.

Slaapvertrekken:
Het appartement beschikt over twee fijne grote slaapkamers respectievelijk 25.1 m2 en 12.9 m2 groot. Beide slaapkamers zijn afgewerkt met tapijt, stucwerk wanden/plafond en grote raampartijen die veel daglicht binnenlaten en toegang geven tot het dakterras. Daarnaast beschikt 1 slaapkamer over een rolluik en 1 over een zonneluifel. Ideaal voor comfort en privacy.
De badkamer is modern en ruim van opzet. Zowel de vloer als de wanden zijn volledig betegeld en u beschikt hier over een inloopdouche, vrijdragend toilet, een badmeubel met dubbele wastafel én een handdoekradiator. 
In de aparte CV-/wasruimte vindt u de aansluitingen voor de wasapparatuur, de opstelling van de HR-combiketel (Intergas, 2023) en de unit voor de mechanische ventilatie.

Overige verdiepingen

Parkeerplaats en berging:
In de ondergelegen parkeerkelder bevinden zich de 2 eigen parkeerplaatsen en de separate afsluitbare berging (2.95m bij 2.54m). De berging is voorzien van elektra. Daarnaast zijn er nog 2 gezamenlijke fietsenbergingen aanwezig.

Balkon

Dakterras:
Een groot pluspunt is het royale dakterras van maar liefst 84 m2! Het terras is volledig bestraat, beschikt over een zonneluifel, poort, diverse plantenbakken die zijn voorzien van bamboe en een buitenkraantje. Hier heeft u volop ruimte om te genieten van een kop koffie in de zon of een lange zomeravond met familie/vrienden.

Bijzonderheden

•	Gelegen midden in het centrum van Son.
•	Keurig afgewerkt appartement op de eerste verdieping.
•	Instapklaar.
•	2 ruime slaapkamers.
•	Royaal dakterras van maar liefst 84 m2.
•	Schilderwerk buitenzijde 2025.
•	Twee parkeerplaatsen en een eigen berging in de ondergelegen parkeergarage.
•	Servicekosten totaal € 435,- per maand (€ 337,- voor het appartement en € 49,- per parkeerplaats).
•	Gelegen aan achterzijde complex.
Vanuit het appartement zicht op groen veldje (Taylorstraat) en zuid georiënteerd.

Locatie:
Dit appartement is direct in het centrum van Son gelegen aan het 17 Septemberplein. Naast de apotheek, dokterspost en diverse terrassen/restaurants, vindt u allerhande winkels voor de dagelijkse boodschappen in de directe nabijheid. Op donderdag is er een weekmarkt op het gezellige Raadhuisplein. Tevens op korte afstand van de uitvalswegen A2 en A50 én op circa 10 autominuten van het centrum van Eindhoven.

Kenmerken